Индустриални сгради
Преустройство на Индустриално хале Rm
гр. Гоце Делчев (България), 2021






Склад за промишлени стоки Pp
гр. Гоце Делчев (България), 2024




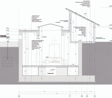
МВЕЦ “РОСА”, община Самоков
МВЕЦ “БАЧЕВО”, община Разлог
част архитектура на водни електроцентрали, 2010












